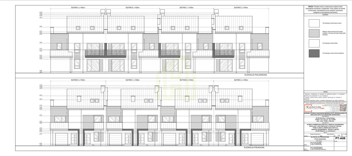
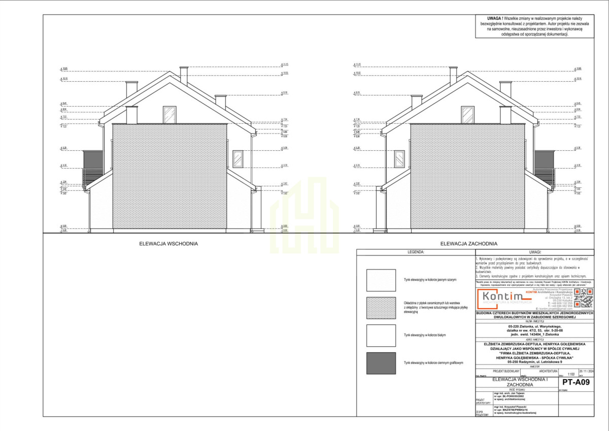
Funkcjonalne mieszkanie o powierzchni ok. 140 m², położone na piętrze w kameralnym segmencie, z dwustanowiskowym garażem i dużym prywatnym i osłoniętym tarasem. Idealna propozycja dla rodzin ceniących przestrzeń, prywatność i spokojne otoczenie, przy jednoczesnym szybkim dojeździe do Warszawy.
Najważniejsze informacje:
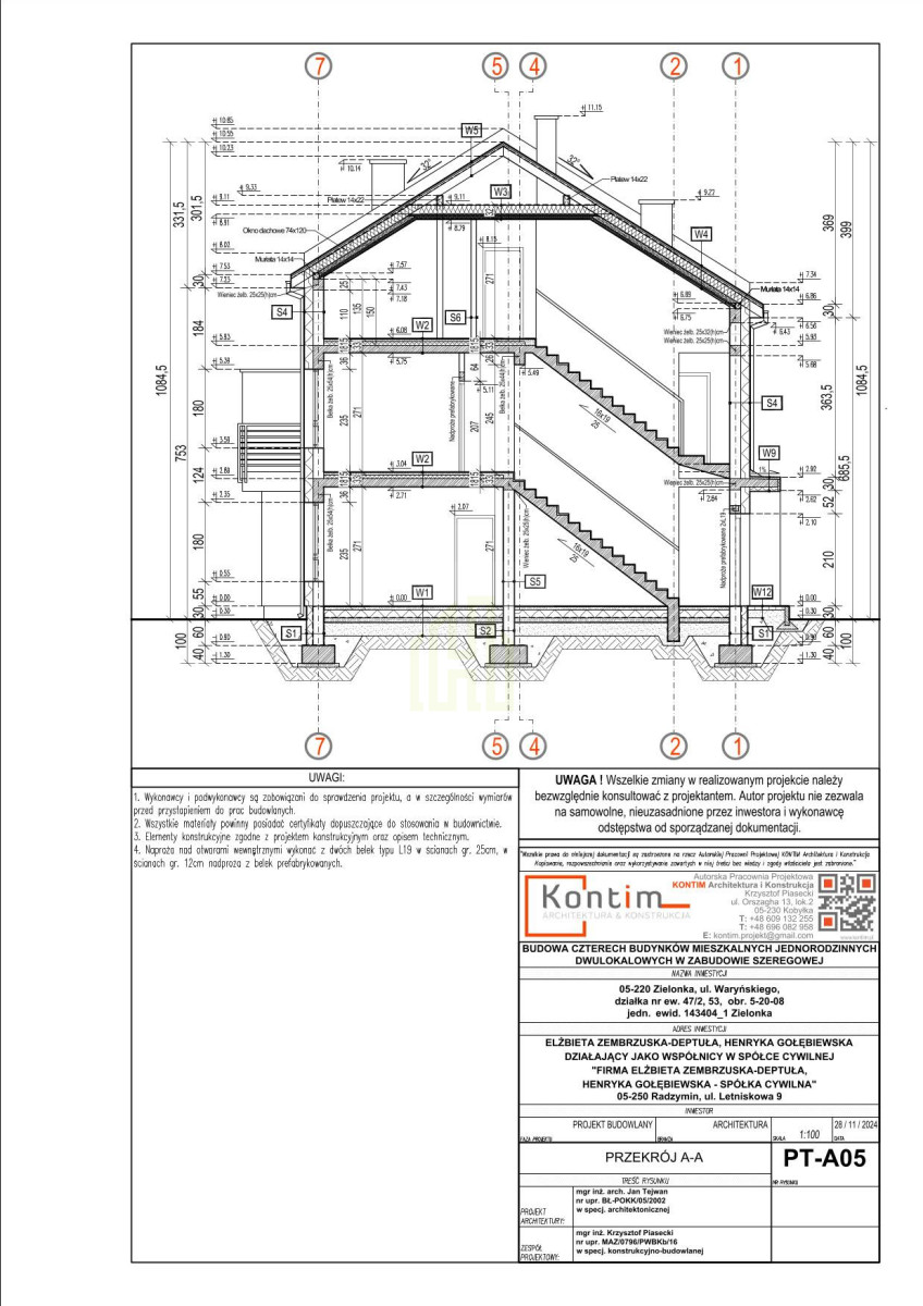
Powierzchnia: ok. 140 m²
Liczba pokoi: 4 sypialnie + salon z aneksem kuchennym
Dodatkowo: spiżarnia + poddasze użytkowe- dodatkowa przestrzeń do zagospodarowania
Łazienki: 2
Taras: tak, przestronny
Garaż: dwustanowiskowy, w bryle budynku
Stan: deweloperski
Planowane oddanie: luty 2026
Brak podatku PCC
Brak czynszu – tylko opłaty licznikowe
Media miejskie: prąd, gaz, woda, kanalizacja
W mieszkaniu zostało również położone ogrzewanie podłogowe.
Brak prowizji przy zakupie!
Atuty nieruchomości:
✔ Spokojna, zielona okolica – w sąsiedztwie zabudowa jednorodzinna
✔ Możliwość własnej aranżacji wnętrz
✔ Szybki dojazd do Warszawy – samochodem i koleją
✔ Pełna infrastruktura w pobliżu – szkoły, sklepy, komunikacja miejska
Dodatkowo współpracując z nami, otrzymują Państwo możliwość wyboru pakietów wykończeniowych rozpoczynających się już od 890 zł/m² – idealne rozwiązanie dla osób ceniących jakość i komfort.
Zapraszam na prezentację!
